Services

HVAC Applications- Operation Theaters

Superspeciality OT: operations of Neurosciences, Orthopedics (Joint Replacement), Cardiothoracic and Transplant Surgery (Renal, Liver etc).

General OT: Ophthalmology and all other basic surgical disciplines. District hospital OTs

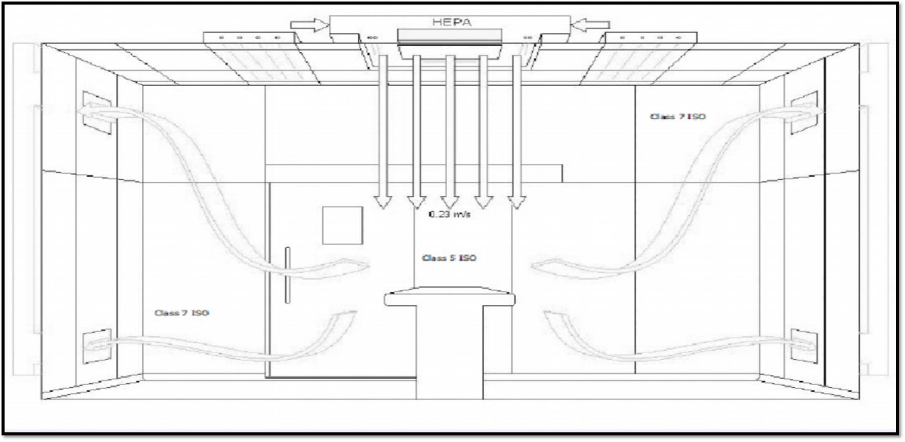
Superspeciality OT

Air Changes: 30 Air Changes

Fresh Air: 5 Air changes min to 100% as per requirement

Air Outlet Velocity: 90 to 100 FPM Laminar flow

Positive Pressure: 15 Pa

Air Quality: Class 100 /ISO 5

Temperature and Humidity: 21+ 3 Deg C RH 40 to 60%

Filtration: 8 ft X 6 ft HEPA Filter plenum above OT Bed. AHU with Pre Filter and Bag

General OT

Air Changes: 25 Air Changes

Fresh Air: 4 Air changes min

Air Outlet Velocity: 8 ft X 4 ft Supply outlet over OT Bed

Positive Pressure: 15 Pa

Air Quality: Class 1000 /ISO 6

Temperature and Humidity: 21+ 3 Deg C RH 40 to 60%

Filtration: Pre Filter, Bag Filters and HEPA Filter in AHU